Auf dieser Seite finden Sie eine kleine Auswahl meiner bisherigen Aufgaben in den Bereichen Projektbetreuung, Denkmalsanierung, Einkaufszentren, Industrie und Verwaltungsgesellschaften.
Projektbetreuung:
Rosti GP Germany GmbH, Erweiterung einer Produktionshalle
Rosti GP Germany ist eine Produktionsstätte in der Lebensmittelindustrie für in diesem Industriezweig vorkommende Kunststoffprodukte.
Aufgrund steigender Produktionsprozesse und die Erweiterung des Kundenstammes ist es notwendig gewesen, einen Teil der Lagerflächen zur einer 1.900 qm neuen Produktionsfläche umzubauen. In die Projektsteuerung inbegriffen waren folgende Bereiche:
Bauzeit: ca. 10 Monate
Bauvolumen: ca. 317.600 €




Denkmal:
Sanierung eines
Mehrfamilienhauses in Meißen
Nahe der historischen Stadtmitte von Meißen wurde ein 3-geschossiges Mehrfamilienhaus kernsaniert. Der Umfang entsprach einer Komplettplanung bei den Gewerken Heizung / Sanitär sowie die planerische Unterstützung bei der Raumgestaltung einschließlich einer Komplett-Visualisierung des Hauses und der Außenanlagen für Kreditinstitute und bei Förderanträgen:
Bauzeit: ca. 9 Monate
Bauvolumen: ca. 69.300 €
Denkmal:
Sanierung Einzelwohnungen Mehrfamilienhaus, Meißen
Nahe der historischen Stadtmitte von Meißen werden in einem mehrgeschossigen Wohnbau einzelne Wohnungen komplettsaniert. Dabei sind einzelne Teilbereiche zu meiner beratenden Funktion als Energieeffizienzexperte zum Tragen gekommen. Eine für die Vermietung unterstützende Grundrisserstellung sowie Visualisierung der Wohnräume erfolgte ebenfalls. Wichtige Punkte bei der Projektbetreuung waren:
Bauzeit: ca. 2 Monate pro Wohnung
Bauvolumen: jeweils ca. 17.700 €




Einkaufszentren:
offene Verkaufsfläche Einkaufszentrum Bischofswerda
In einem kleinen, gut besuchten Einkaufszentrum in Bischofswerda wurde eine sogenannte offene Verkaufsfläche für den dort örtlich ansässigen Fleischer umgebaut. Dabei war ich mit der Planung der Lüftung und des fetthaltigen Abwassers betraut worden. Der Planungsumfang belief sich auf einem dem der Leistungsphase 3 ähnlichen Entwurf und darauf gefußt, das Erstellen eines Leistungsverzeichnisses beider Gewerke für das Anfragen der Anlagenbauer:
Bauzeit: ca. 4 Monate
zu betreuendes Bauvolumen: 38.800 €
Einkaufszentren:
Kaufpark Dresden Nickern
Der Kaufpark Dresden Nickern hat nach sehr erfolgreichen Jahren als Shopping-Park eine Verjüngungskur durch eine totale Neuerrichtung samt vorherigen Komplettabriss erhalten.
Die Gesamtfläche für Verkauf / Gewerbe beläuft sich auf über 56.000 Quadratmeter. Mit der Neuerrichtung wird die zukünftige Regen-Entwässerung großteils über eine Unterdruckentwässerung realisiert. Die unterstützende Planung als Zuarbeit erfolgt für das renommierte Planungsbüro ZWP AG Dresden. Vverbaut wurde als Hersteller ACO Passavant.
Der Planungsumfang in meinem Aufgabenbereich umfasst ein baubegleitendes Erstellen der Pläne und das Erstellen eines Leistungsverzeichnisses für Regenwasser:
Bauzeit: ca. 3 Jahre in 2 Bauabschnitten
Planungsvolumen: 3.300.000 €




Öffentliche Auftraggeber:
Uniklinikum Dresden, Haus 31
Im riesigen Areal des Uniklinikums ist im Zuge einer Maßnahme zur Sicherung der Versorgungssicherheit eines Forschungsgebäudes ein luftgekühlter Kaltwassersatz für die Anbindung an das unterirdische Kaltwassernetz getauscht worden. Die Sanierung umfasste ca. 120 Meter erdverlegte Leitungen als auch den Ausbau der Technikzentrale für die jetzige Ausbaustufe sowie die Vorhaltung einer Reserve für eine spätere Möglichkeit, weitere Laborräume in das Versorgungsnetz zu integrieren.
Im Arbeits-Umfang enthalten war neben dem Leistungsverzeichnis auch die Leistungsphase 6 (Ausführungsplanung) als auch die Bauleitung für das Gewerk Kälte (Leistungsphase 8) und letztlich das Erstellen der Revisionszeichnungen nach dem Standard des Bauherrn:
Bauzeit: ca. 5 Monate
zu betreuendes Bauvolumen: ca. 191.800 €
Industrie:
Rosti GP Germany GmbH, Planung einer Lüftungsanlage für einen Schweiß- und Produktionsbereich
Rosti GP Germany ist eine Produktionsstätte in der Lebensmittelindustrie für in diesem Industriezweig vorkommende Kunststoffprodukte.
Für einige Produkte ist es wichtig, sie in gesonderten Bereichen entstehen zu lassen. Einer dieser schon bestehenden Bereiche sollte aufgrund veränderter Kundenspezifikationen eben auf diese Bedürfnisse angepasst und gleichzeitig auf den aktuellen Stand der Technik für das Gewerk Lüftung gesetzt werden. Dazu war es nötig eine eigene Lüftungsversorgung mit entsprechendem Lüftungsgerät zu kreieren. Zeitgleich sind die Räumlichkeiten für Schweißarbeiten ebenso neu zu strukturieren. Letztlich war in der Planung vorgesehen, dass eine mobile Absaugeinrichtung die nur gelegentlich stattfindenden Schweißarbeiten vollumfänglich filtern und es damit ermöglichen, dass die Schweißerkabine an das Zu- und Abluftsystem angebunden werden kann. Es entfällt damit die händische Umschaltung zwischen Produktionsbereich und Schweißarbeiten.
Der Planungsumfang in meinem Aufgabenbereich umfasste damit eine Konzepterstellung bis hin zur Ausführungsplanung bis hin zur Auswertung der bepreisten Leistungsverzeichnisse für das Gewerk Lüftung:
Bauzeit: keine Umsetzung
zu betreuendes Planungsvolumen: 108.600 €




Industrie:
Söhnel Elektroanlagen GmbH, Betreuung Leistungsphase 8
Ein Neubau eines Büro- und Werkstattgebäude ist von einem renommierten Planungsbüro aus Nordrhein-Westfalen bis zum Entwurf entwickelt worden.
Aus diesem Entwurf wurden die Änderungen im Baugeschehen vor Ort begleitet; angefangen vom Leistungsverzeichnis bis zur Detaillierungsdarstellung für den Deckenspiegel, den Dachaufbau, Änderungen in der Anordnung von zentralen Einbauten sowie die Weiterführung in der Planung des Nebengebäudes:
Bauzeit: ca. 13 Monate
zu betreuendes Bauvolumen: ca. 380.000 €
Verwaltungsgesellschaften / Vereine:
Swiss Life Asset Management, Dachsanierungsmaßnahme Regenwasser, Kälte
Im Zuge einer Gründachsanierung sind die im Bestand befindlichen und völlig maroden Regenwasserabläufe zu tauschen. Die dafür benötigten Berechnungen wurden unter Nagesicht bestehender Brandschutz- und Statikvorgaben erstellt und mit Hilfe der noch teilweise vorhandenen, alten Unterlagen wurden die Übergabepunkte an die Mischwasserkanalisation definiert und mit der neu einzuleitenden Menge an Regenwasser abgeglichen.
Des Weiteren sind die ebenso im Bestand befindlichen Außeneinheiten für die Split-Kälte so in den Sanierungsprozess einbezogen worden, dass die Anforderungen des Betreibers auf einen Dauerbetrieb während der Maßnahme gewährleistet ist:
Bauzeit: ca. 6 Monate
zu betreuendes Bauvolumen: ca. 240.000 €




Verwaltungsgesellschaften / Vereine:
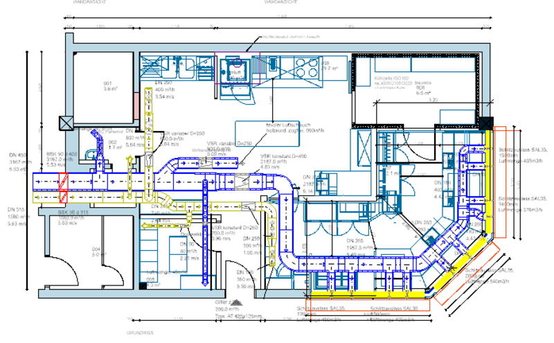
Evangelisches Schulzentrum, Lüftungskonzept für eine Aufbereitungsküche
Durch einen Erweiterungskomplex eines Schulbaus ist während der Bauphase die Idee entstanden, dass man zu einem späteren Zeitpunkt, durchaus die Möglichkeit nutzen möchte, eine Aufbereitungsküche zu etablieren, die aber zum Zeitpunkt der Bauphase aus finanzieller Sicht nicht umgesetzt werden konnte. Aus diesem Grund wurde im Verein nach tatkräftiger, allgemeinnützer Hilfe angefragt, welche die Ideen hierzu mit begleiten können. Alsbald entwickelte sich ein Entwurf per Hand für die Leitungsführung der Fort- und Abluft im Schacht zwischen Alt- und Neubau der beiden Gebäude. Die zu einem späteren Zeitpunkt zu nutzenden Lüftungskanäle sollten während der Bauphase ihren Platz finden, um spätere Abdichtungsprobleme in der Dachkonstruktion im komplexen Übergang zwischen Alt- und Neubau zu vermeiden:
Bauzeit: ca. 1 Monate
zu betreuendes Bauvolumen: ca. 24.000 €